Sold

PICTURE PERFECT!!!

INVESTORS ONLY

Currently leased $345 pw until May 2021

Situated amongst quality homes is this impressive residence which oozes character and charm.

Invited in by the impressive street appeal is only the start.

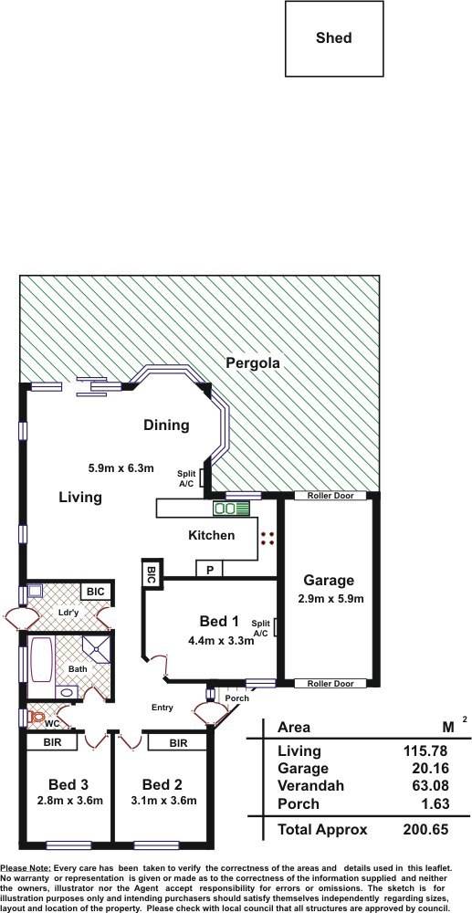
Benefits include, entry hall which leads your guests through to warm hospitality, for the chef you have a modern electric kitchen/meals area, with an abundance of work space and cupboards along with, rangehood, dual sink, flickmixer, breakfast bar, pantry and bay window overlooking easy care rear garden.

Only a step away is a spacious relaxing family room with reverse cycle split air conditioner.

The sleeping quarters are well equipped for with three good size bedrooms all with built in robes, main with reverse cycle split air conditioner.

For the security conscious there are roller shutters.
The home is tastefully decorated with quality fixtures and fittings t/out along with fresh neutral tones.

External benefits include paved verandah/pergola area, toolshed, garage umr- roller door all on a fully landscaped 416m2 allotment.

Specifications

CT - 5863/407

Council - City of Salisbury

Zoning - Residential

Built - 2003

Land – 410m2

Land Frontage 13m

Building Area – 126m2 

Council Rate - TBC

SA Water - $225.00 pq

ESL - TBC

Available by appointment only


For further enquiries call Romeo Riccio direct on 0412 846 021
at LARCOR Real Estate, 42 Ann Street, Salisbury SA 5108.

 

Disclaimer: All information provided (included but not limited to the properties land size, floor plan and floor size, building age and general property description) has obtained been obtained from sources deemed reliable, however, we cannot guarantee the information is accurate and we accept no liability for any errors or oversights. Interested parties should make their own inquiries and obtain their own legal advice.

 

3 1 1
Address 14 Post Avenue, Salisbury
Price SOLD
Property Type Residential
Property ID 801
Category House

Agent Details

Romeo Riccio photo

Romeo Riccio

0412 846 021
View Profile