Just Listed

EXCITING OPPORTUNITY FOR INVESTORS!

 This is a rare opportunity to secure two semi-detached residences on separate titles, offering a combined land holding of 678m² (349m² and 329m² respectively).

Property One – 349m² allotment - $480,000
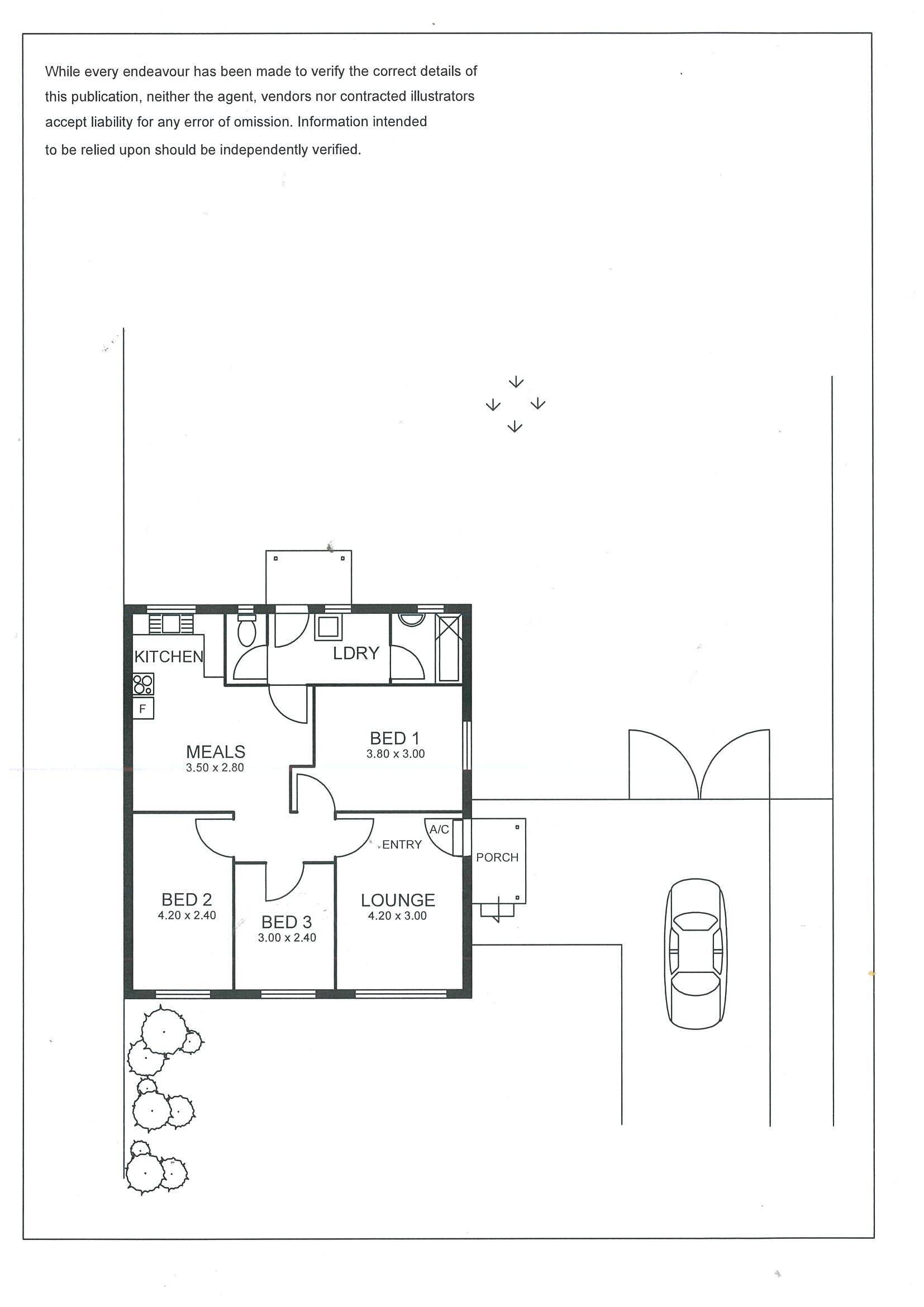
•    Three bedrooms
•    Separate lounge
•    Neat electric kitchen with meals area
•    Reverse cycle air conditioning
•    Neutral décor throughout
•    Laminate flooring
•    Carport with roller door

Property Two – 329m² allotment - $450,000
•    Two bedrooms
•    Separate lounge
•    Neat electric kitchen with meals area
•    Reverse cycle split air conditioning
•    Carport with roller door
•    Fully fenced, enclosed yard

Both properties are currently leased to long-term tenants, providing immediate rental income:
•    1 - $360 per week until 18 March 2027
•    2 - $330 per week until 24 October 2026

An outstanding opportunity to strengthen your investment portfolio, with the flexibility to purchase individually or as a single package.

Inspection strictly by appointment only.

Specifications for property One 
Built / 1960
Title / Volume 6320 Folio 867
Council / City of Playford
Zoning / General Neighbourhood (GN)
Land / 349 m2
Council Rates / $ TBC
ESL / $ TBC
SA Water / $165.55 pq (exc consumption) 
Easements / Party Wall rights 
Encumbrances / Nil
Construction / Brick Veneer & iron roof
Sewerage / Mains  
Gas / Not connected
Anticipated market rent / $420 per week 
                                                                                                                                                                                                                                                                                                                                                           
For further enquiries call Romeo Riccio 0412 846 021
LARCOR Real Estate, 42 Ann Street, Salisbury SA 5108  

RLA154447

Disclaimer: All information provided (included but not limited to the properties land size, floor plan and floor size, building age and general property description) has obtained been obtained from sources deemed reliable, however, we cannot guarantee the information is accurate and we accept no liability for any errors or oversights. Interested parties should make their own inquiries and obtain their own legal advice.

 

 

 

 

3 1 1
Suburb Elizabeth Downs
Price $480,000
Property Type Residential
Property ID 1808
Category Duplex Semi-detached

Agent Details

Romeo Riccio photo

Romeo Riccio

0412 846 021
View Profile