OPEN SAT 06/12/25 11:05AM – 11:20AM

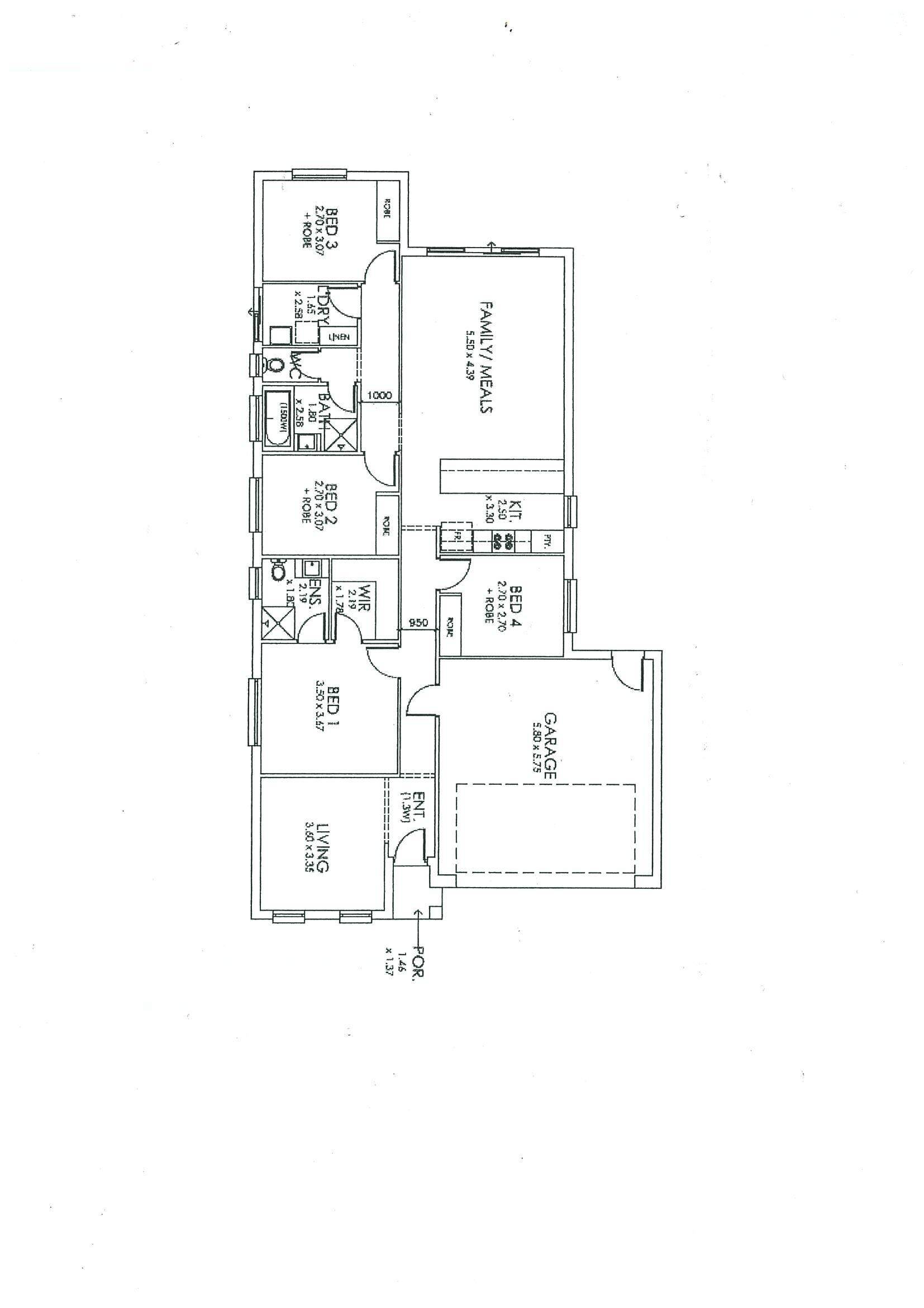
Executive home, entry hall, 4 brms, ensuite, WIR, BIRS, deluxe electric  kitchen/meals , formal lounge , family room, reverse cycle ducted a/cond, double garage umr - remote roller door, fully landscaped gardens

12 Month Lease

One application form required per adult prior to viewing

Tenancy Application Forms are available from our website www.larcor.com.au under “Renting/Leasing" banner Download Rental Forms.

RLA154447

 

4 2 2
Available Available Now!
Address 10 Steve St, Munno Para
Price $550 Per Week
Property Type Rental
Property ID 1791
Category House

Agent Details

LARCOR Real Estate photo

LARCOR Real Estate

08 8281 4999
View Profile