INVESTORS LETS TALK

Currently leased @ $425.00 per week until January 2026.

Ready to go, this residence ticks all the boxes for the fussy buyer.

Torrens title home not semi
Frontage 19.88m
Land size 723m2

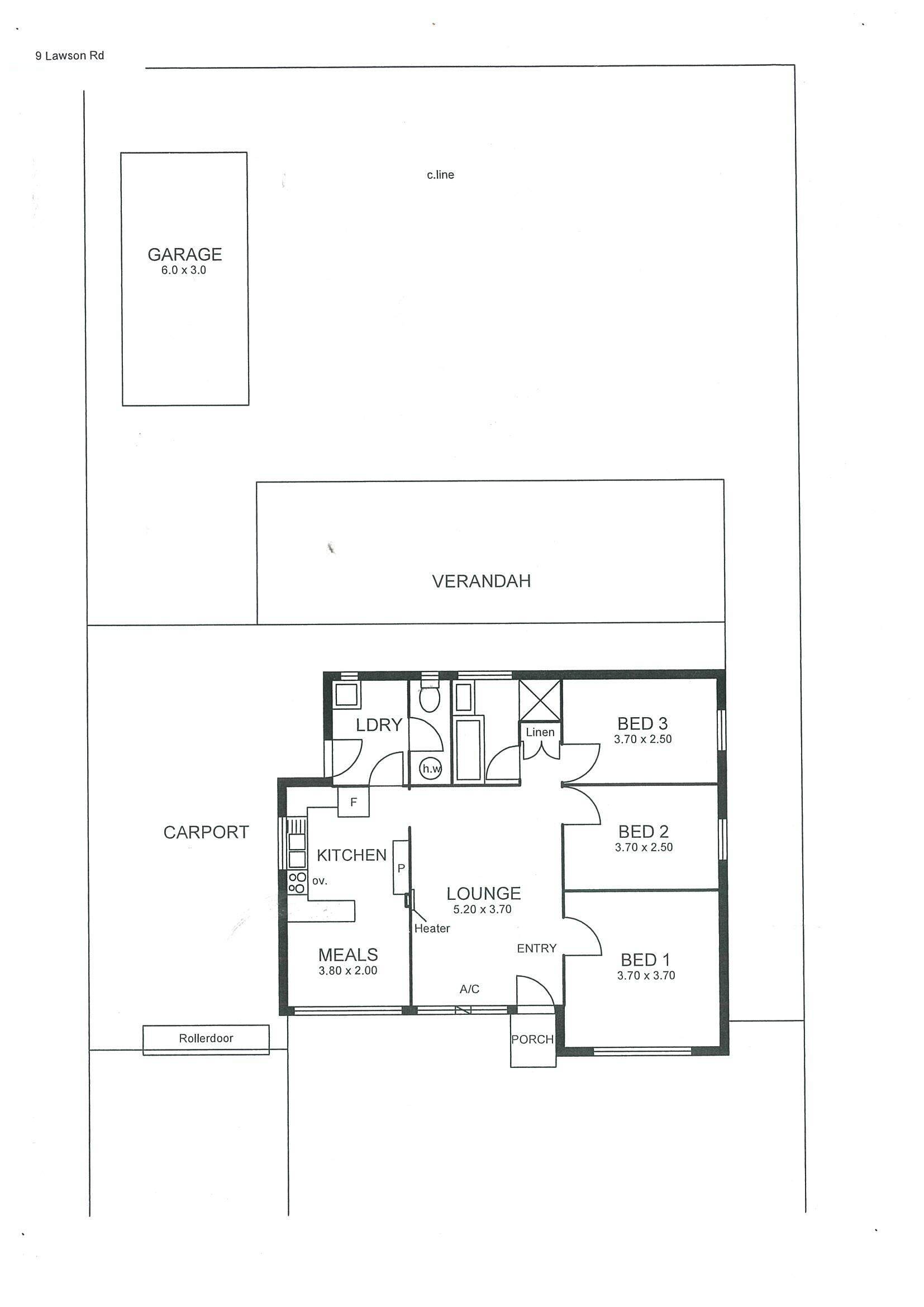
Impressive contemporary design that’s tastefully decorated throughout.
 
Entry to a large relaxing lounge with reverse cycle air conditioner leading through to a chef gourmet modern kitchen/dine, with the look of luxury, boasts electric oven, gas hotplates, rangehood, dual sink, pantry and an abundance of workspace and cupboards.

The bathroom is neat and tidy.

The home is tastefully decorated throughout with quality fixtures and fitting.

External benefits include a verandah, toolshed, carport with remote roller door, all on a private and secure 723m2 allotment. 

Specifications
Built – 1965
Title / Torrens Title – Volume 5082 / Folio 929
Zoning – General Neighbourhood (GN)
Council – City of Playford
Council Rate - $ TBA 
SA Water - $165.55 pq (excluding consumption) 
Easements – SA Water sewerage 
Encumbrance - Nil
Gas – Connected 
Sewerage – Mains 

Strictly by appointment only

For further enquiries call Romeo Riccio direct on 0412 846 021
LARCOR Real Estate, 42 Ann Street, Salisbury SA 5108

RLA154447

Disclaimer: All information provided (included but not limited to the properties land size, floor plan and floor size, building age and general property description) has obtained been obtained from sources deemed reliable, however, we cannot guarantee the information is accurate and we accept no liability for any errors or oversights. Interested parties should make their own inquiries and obtain their own legal advice.

3 1 1
Suburb Davoren Park
Price SOLD
Property Type Residential
Property ID 1757
Category House

Agent Details

Romeo Riccio photo

Romeo Riccio

0412 846 021
View Profile