PERFECT PACKAGE

Currently leased @ $420 per week until September 2025

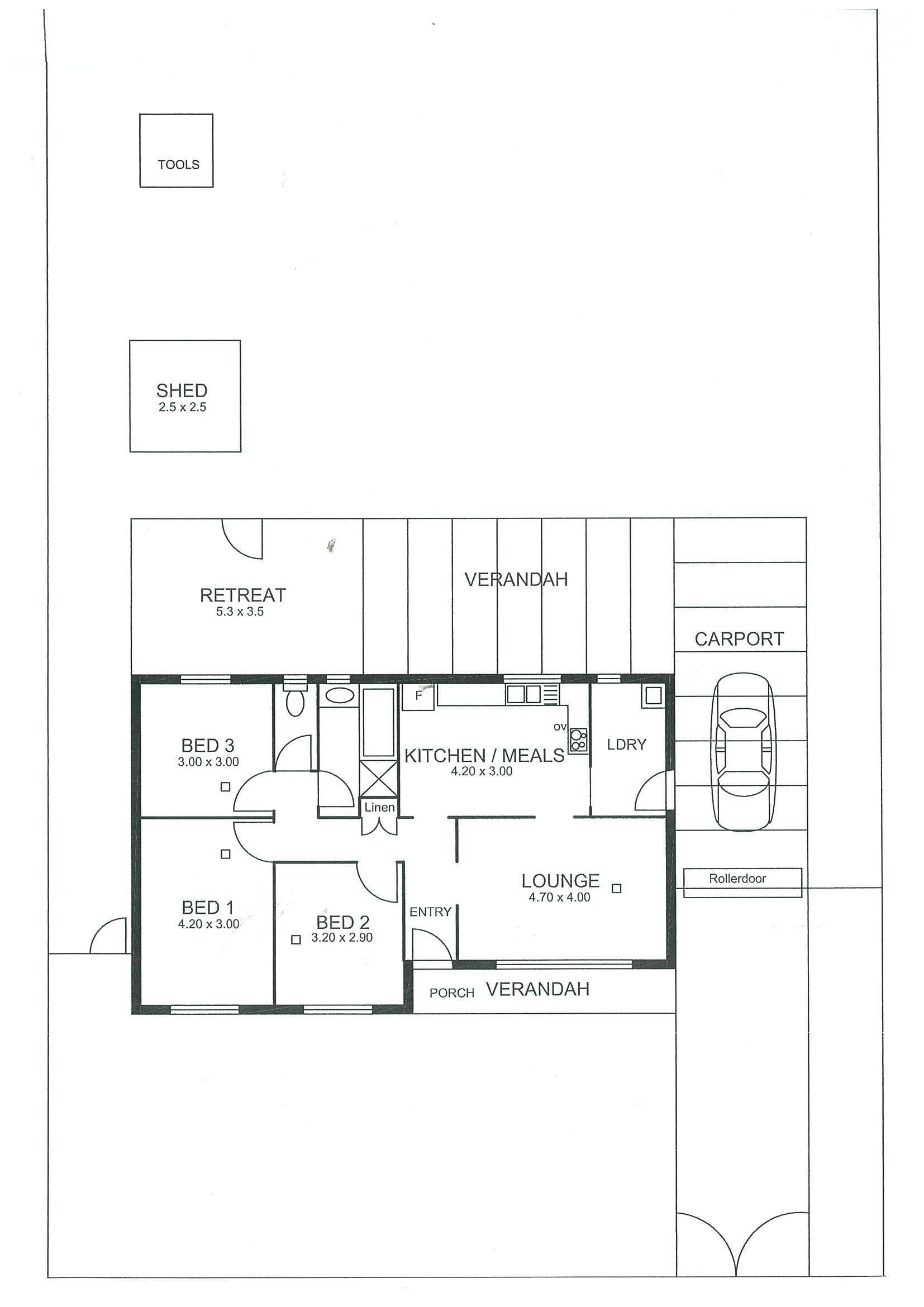
Situated amongst quality home is this solid brick colonial charmer which boosts inviting street appeal.

Lets step inside!

Starts with entry hall leading through to a formal relaxing lounge with ceiling fan and a reverse cycle split air conditioner.

The modern kitchen/dine boasts electric under bench oven and hot plates and an abundance of cupboards and workspace.

The sleeping quarters are well catered for with 3 good sized bedrooms

The hot summer nights and cold winter days will not be a worry with revers ducted air conditioning throughout.

The home is tastefully decorated throughout with neutral décor and quality fixtures and fittings.

External benefits include verandah, toolshed, carport under main roof all on private 584m2 allotment

Available to view by appointment only.

Specifications
Year Built / 1967
Title / Torrens Title – Volume 5226 Folio 589 
Land Size / 584sqm 
Frontage / 19.20m
Zoning / R - Residential
Local Council / City of Salisbury 
Council Rates / $1461.60 pa 
SA Water Rates (excluding usage) / $165.55 pq 
Easement(s) / Nil
Encumbrance(s) / Nil
Construction / Solid brick, Tiled roof
Gas / Not Connected
Sewerage / Mains

For further enquiries call Romeo Riccio direct on 0412 846 021
LARCOR Real Estate, 42 Ann Street, Salisbury SA 5108


RLA154447


Disclaimer: All information provided (included but not limited to the properties land size, floor plan and floor size, building age and general property description) has obtained been obtained from sources deemed reliable, however, we cannot guarantee the information is accurate and we accept no liability for any errors or oversights. Interested parties should make their own inquiries and obtain their own legal advice.

 

 

3 1 1
Suburb Salisbury East
Price SOLD
Property Type Residential
Property ID 1736
Category House

Agent Details

Romeo Riccio photo

Romeo Riccio

0412 846 021
View Profile