Leased

Great location in walking distance to Salisbury Centre

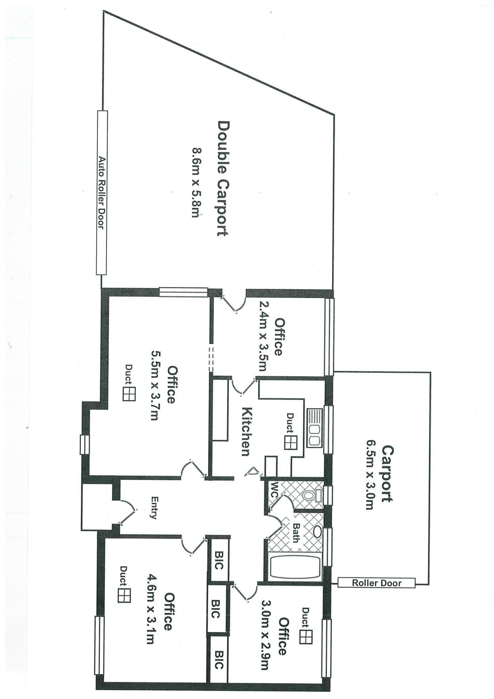
Available now is this well-positioned commercial property offering 80m² of versatile space, ideal for a variety of business needs. This property features private offices, excellent street visibility, and high foot traffic, making it a perfect opportunity to establish or grow your business in a prime location.

Tenancy area 80m2
Four separate offices
Kitchen facilities
Reverse cycle ducted air conditioning throughout 
Alarm
Off street parking (6)
Undercover parking (3)

Rent$25,000 + Outgoings + GST

Available Now

To arrange appoint to view or for more information call Romeo Riccio 0412 846 021

LARCOR Real Estate, 42 Ann Street, Salisbury SA 5108

Disclaimer: All information provided (included but not limited to the properties land size, floor plan and floor size, building age and general property description) has obtained been obtained from sources deemed reliable, however, we cannot guarantee the information is accurate and we accept no liability for any errors or oversights. Interested parties should make their own inquiries and obtain their own legal advice.

RLA154447

8
Address 35 Ann St, Salisbury
Price $25,000 + OUTGOINGS + GST
Property Type Commercial
Property ID 1729
Category Offices
Office Area 80m2

Agent Details

Romeo Riccio photo

Romeo Riccio

0412 846 021
View Profile