INVESTORS HER WE GO ..

 

This inviting solid brick strata titled unit in an ideal location is the perfect addition to your investment portfolio.

Currently leased @ $310.00 per week until April 2025.

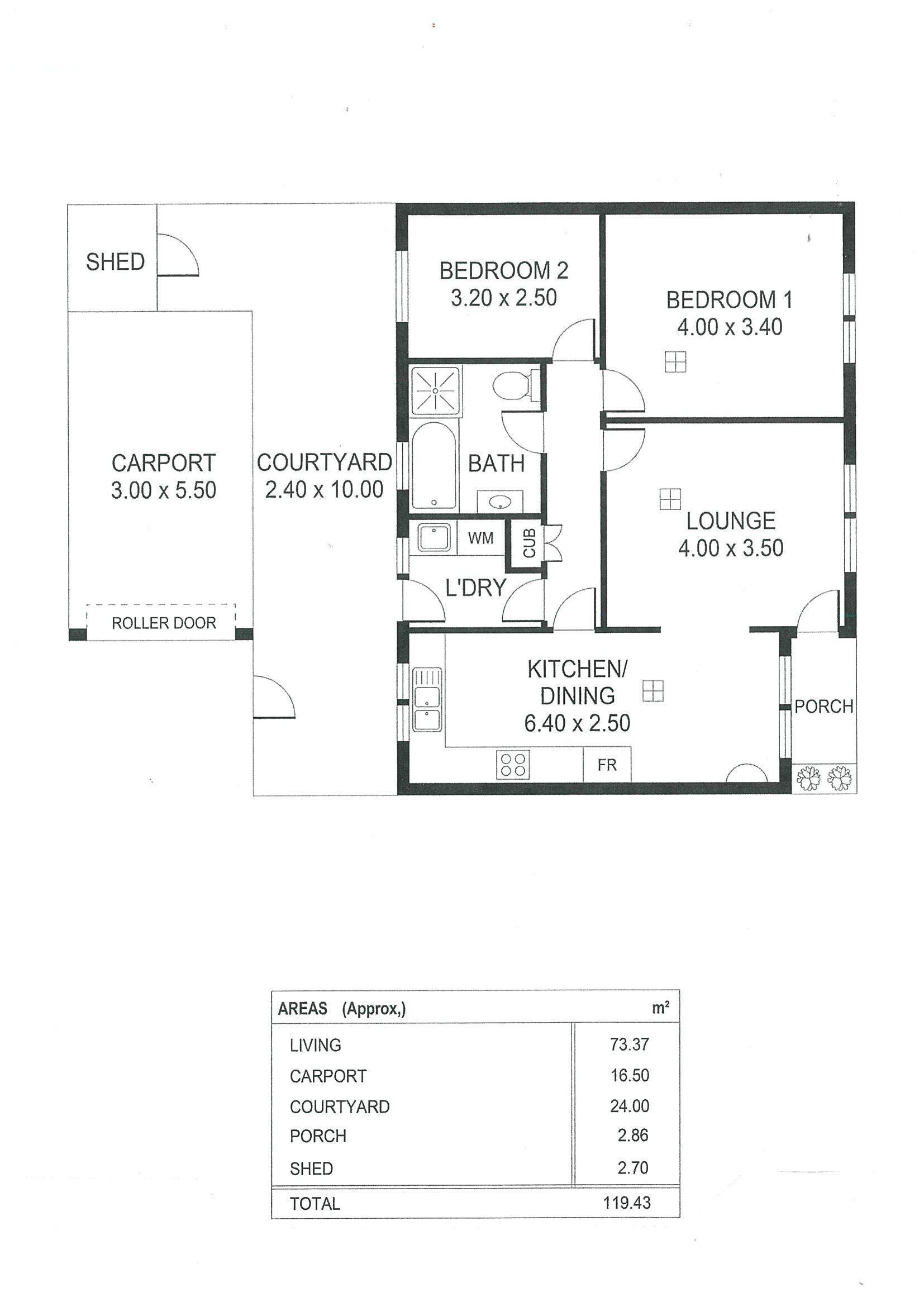
Benefits include entry hall to a large relaxing formal lounge.

The gourmet kitchen/meals boasts gas cook top, under bench oven, rangehood, abundance of cupboard and bench space complimented by the glass splash back.

The sleeping quarters are well catered for with 2 good sized bedrooms.

The neat centrally located bathroom and separate laundry provide access to rear private courtyard.

The long summer nights and cold winter days are not a worry with the reverse cycle ducted air conditioning throughout.

External benefits include toolshed, paved courtyard, carport with roller door.

A well maintained unit located across from Jenkins Reserve, ideally located close to transport, schools and Salisbury city centre.

Specifications

CT -5022 /  Folio 731

Council – City of Salisbury

Zoning – Residential

Built – 1981

Council Rates - $1156.00 pa

SA Water - $205.83 pq (exc consumption)

ESL - $85.50 pa

Strata – $400.00 pq

 

Strictly by appointment only

For further enquiries call Romeo Riccio direct on 0412 846 021

LARCOR Real Estate, 42 Ann Street, Salisbury SA 5108

RLA154447

Disclaimer: All information provided (included but not limited to the properties land size, floor plan and floor size, building age and general property description) has obtained been obtained from sources deemed reliable, however, we cannot guarantee the information is accurate and we accept no liability for any errors or oversights. Interested parties should make their own inquiries and obtain their own legal advice.

 

2 1 1
Suburb Salisbury
Price SOLD
Property Type Residential
Property ID 1679
Category Unit

Agent Details

Romeo Riccio photo

Romeo Riccio

0412 846 021
View Profile