READY SET GO.....

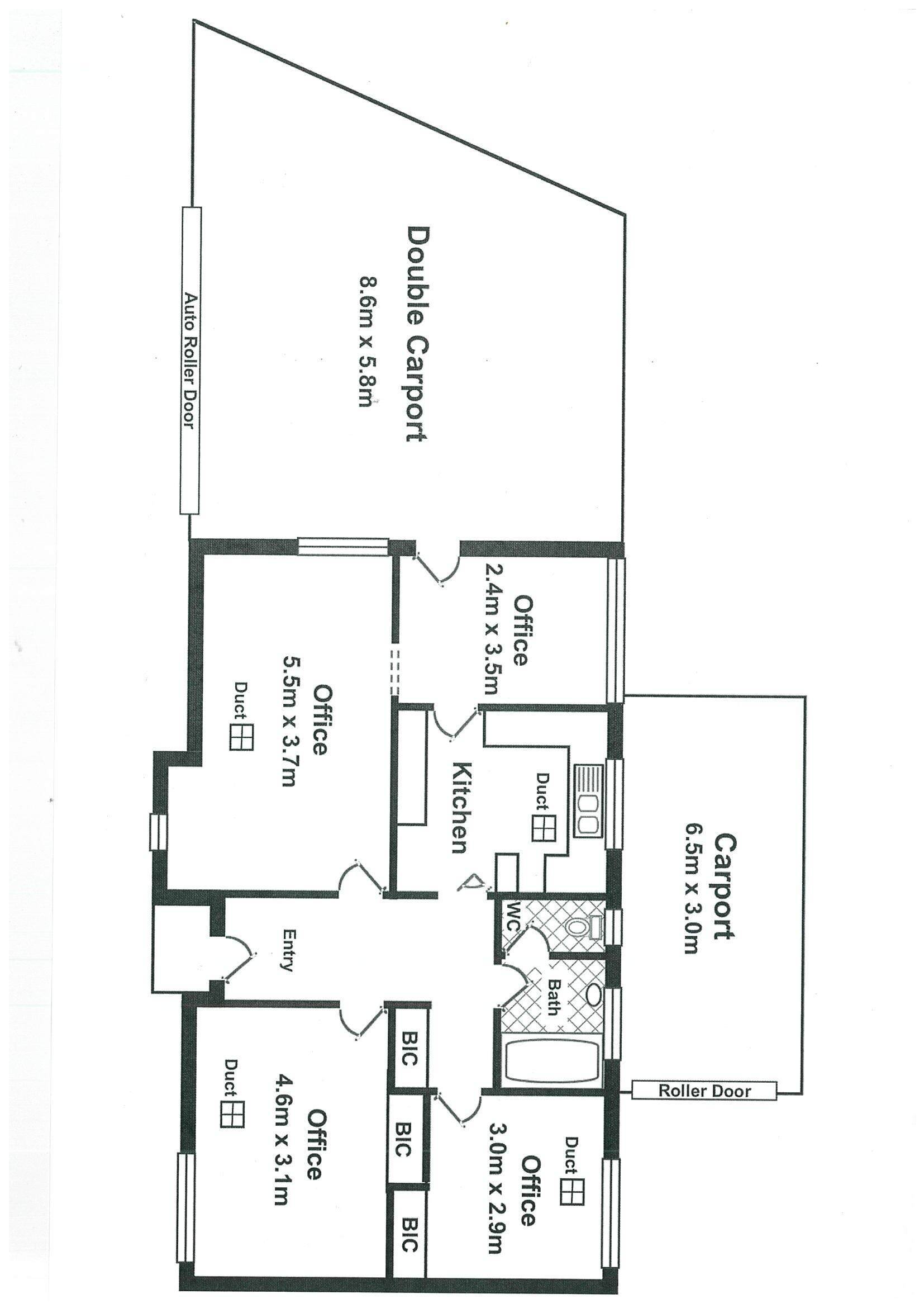
The property offers entry hall, four seperate offices, kitchen facilities, wc, reverse cycle ducted air conditioning, alarm, carport, enclosed rear yard 

Available from 01/03/2023

Term negotiable

Strictly by appointment only 

RLA154447

3
Suburb Salisbury
Price $25000 + GST + OUTGOINGS
Property Type Commercial
Property ID 1568
Category Offices, Medical/Consulting
Office Area 80m2

Agent Details

Romeo Riccio photo

Romeo Riccio

0412 846 021
View Profile