LOCATION LOCATION LOCATION

Shops / Retail / Medical / Consulting / Offices

 

Opposite Parabanks Shopping Centre

Sensational Location  High exposure

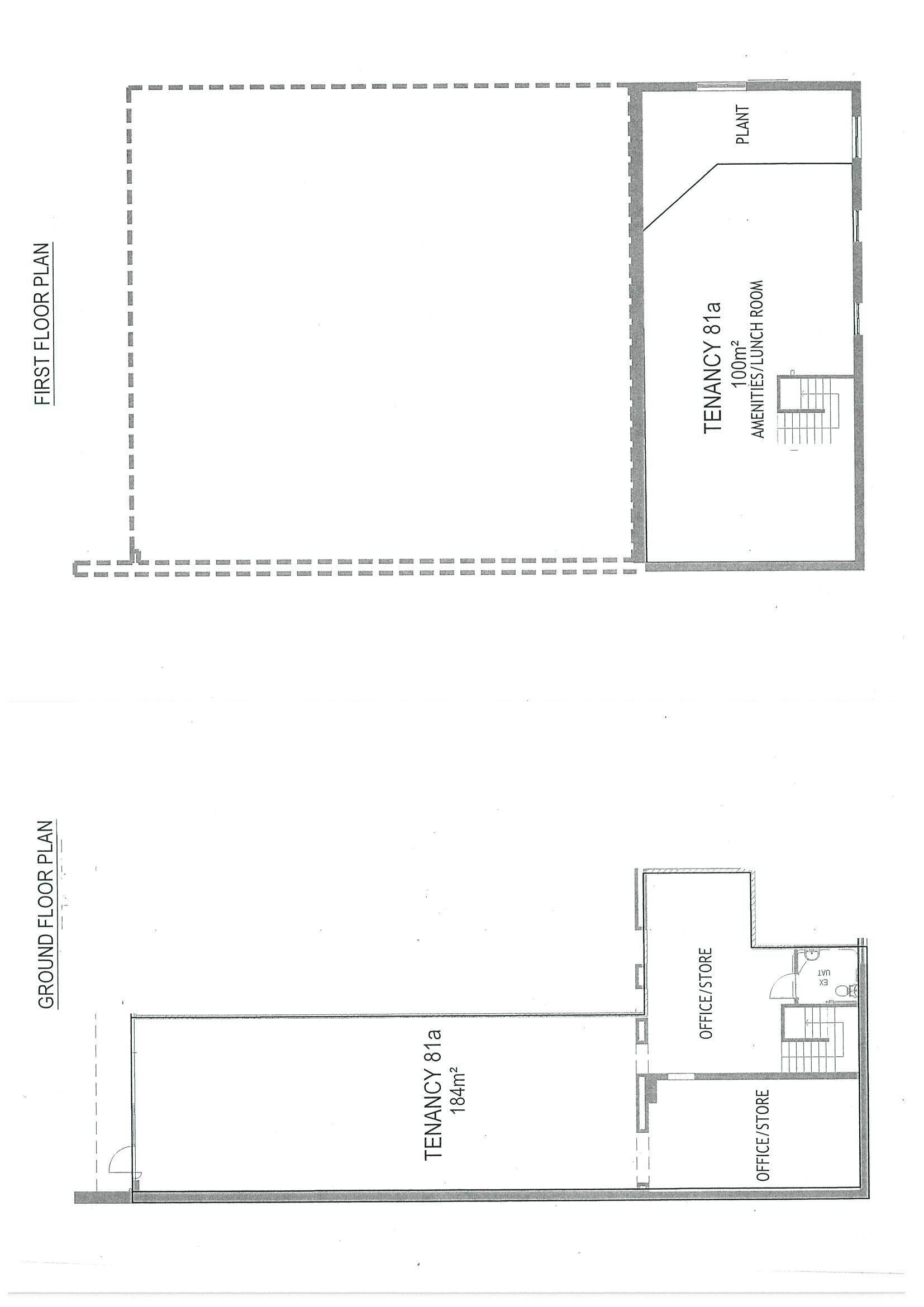
285m2 total area

Flexible open plan

Three separate offices

Secure premises

Freshly painted

Two levels

Full kitchen facilities

Unisex toilet & separate male and female toilets

Reverse cycle Ducted air conditioning (new)

Off street parking

Close to Salisbury Train/Bus interchange

 

Make an appoint to view today.

 

For further enquiries call Romeo Riccio direct on 0412 846 021

LARCOR Real Estate, 42 Ann Street, Salisbury SA 5108

RLA154447

Disclaimer: All information provided (included but not limited to the properties land size, floor plan and floor size, building age and general property description) has obtained been obtained from sources deemed reliable, however, we cannot guarantee the information is accurate and we accept no liability for any errors or oversights. Interested parties should make their own inquiries and obtain their own legal advice.

 

4
Address 81A John Street, Salisbury
Price $85,000 + Outgoings + GST
Property Type Commercial
Property ID 1531
Category Offices
Office Area 285m2

Agent Details

Romeo Riccio photo

Romeo Riccio

0412 846 021
View Profile