READY SET GO.....

This  two bedroom Torrens Tittle unit in demand location would suit perfect first home buyer, or  investor .

Currently leased @ $320 per week until October 2022.

Impressive street appeal is only the start.

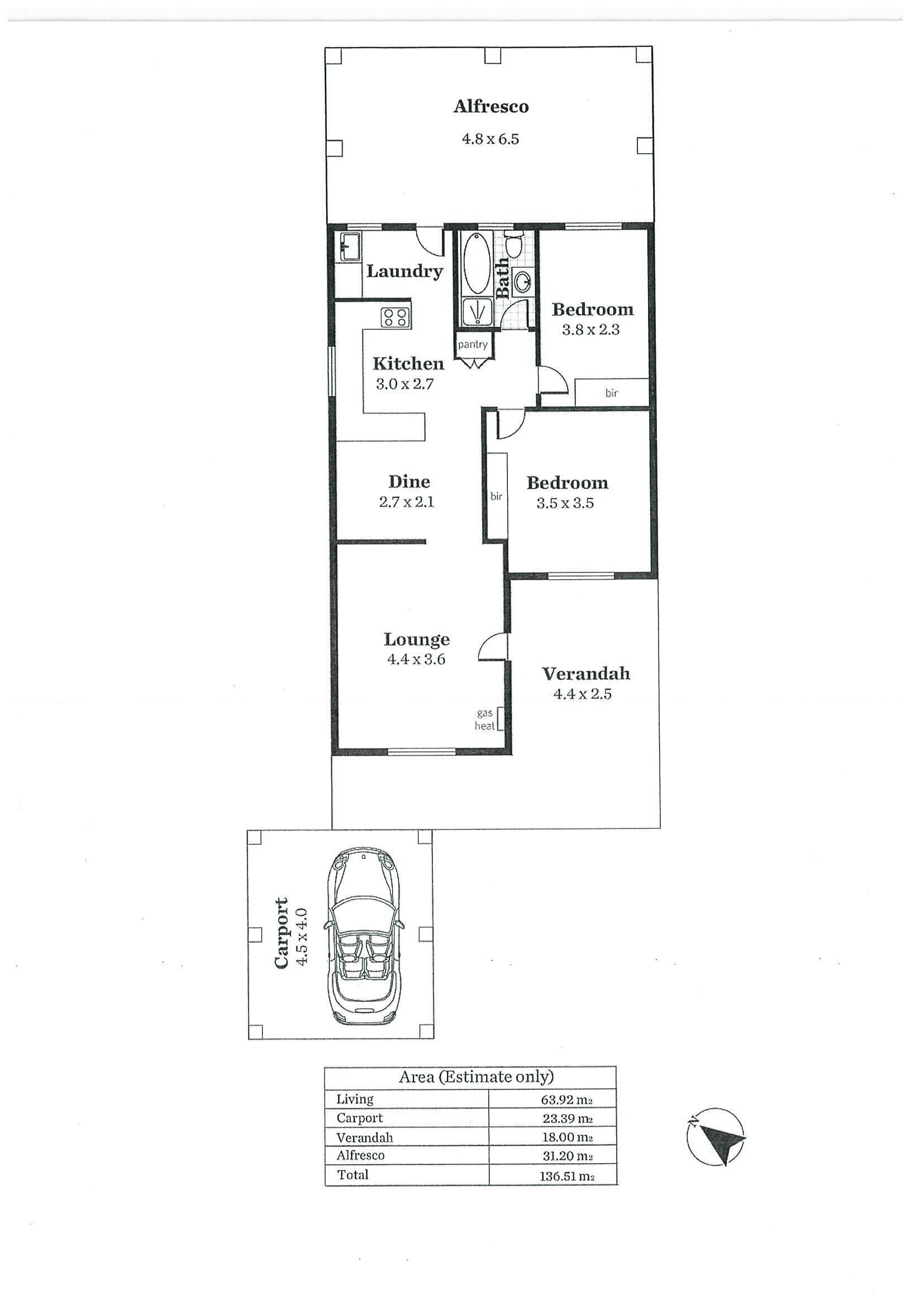
Offer entry to spacious relaxing lounge, ceiling fan, leading through to a neat gas kitchen with dual sink, abundance of bench space and cupboards, pantry all overlooking a spacious dine area with reverse cycle air conditioning.

The sleeping quarters are well catered for with good sized bedrooms both with built In robes.

Exterior benefits include gas instant hot water service, 2.4kw solar system, verandah, carport, toolshed, enclosed rear yard all on 429m2 allotment.

Upgraded in the last 12 months, hot water service,  solar panels, carpets, paint in bedroom 1, 2 & lounge.

Specifications

CT -5423/255

Council – City of Salisbury

Zoning – Residential 

Built - 1977

Land – 429m2

Building – 69m2 

Council Rate - $1064 pa

SA Water - $142.10 pq (exc usage)

ESL – $88.50 pa

Easements/Encumbrances - NIL

 

Strictly by appointment only

For further enquiries call Romeo Riccio direct on 0412 846 021

LARCOR Real Estate, 42 Ann Street, Salisbury SA 5108

RLA154447

Disclaimer: All information provided (included but not limited to the properties land size, floor plan and floor size, building age and general property description) has obtained been obtained from sources deemed reliable, however, we cannot guarantee the information is accurate and we accept no liability for any errors or oversights. Interested parties should make their own inquiries and obtain their own legal advice.

 

2 1 1
Suburb Salisbury Downs
Price SOLD
Property Type Residential
Property ID 1496
Category House

Agent Details

Romeo Riccio photo

Romeo Riccio

0412 846 021
View Profile