TERRIFIC TOWNHOUSE WITH THE LOT

Currently leased @ $310.00 per week until June 2022

Situated in a quite location amongst quality homes is this executive townhouse that offers space, quality and features and impressive street appeal to suit the fussy buyer.

Benefits include entry to large open plan living downstairs, deluxe kitchen, stainless steel appliances, overlooking a relaxing lounge/dine, reverse cycle split air conditioner, bathroom laundry facilities downstairs.

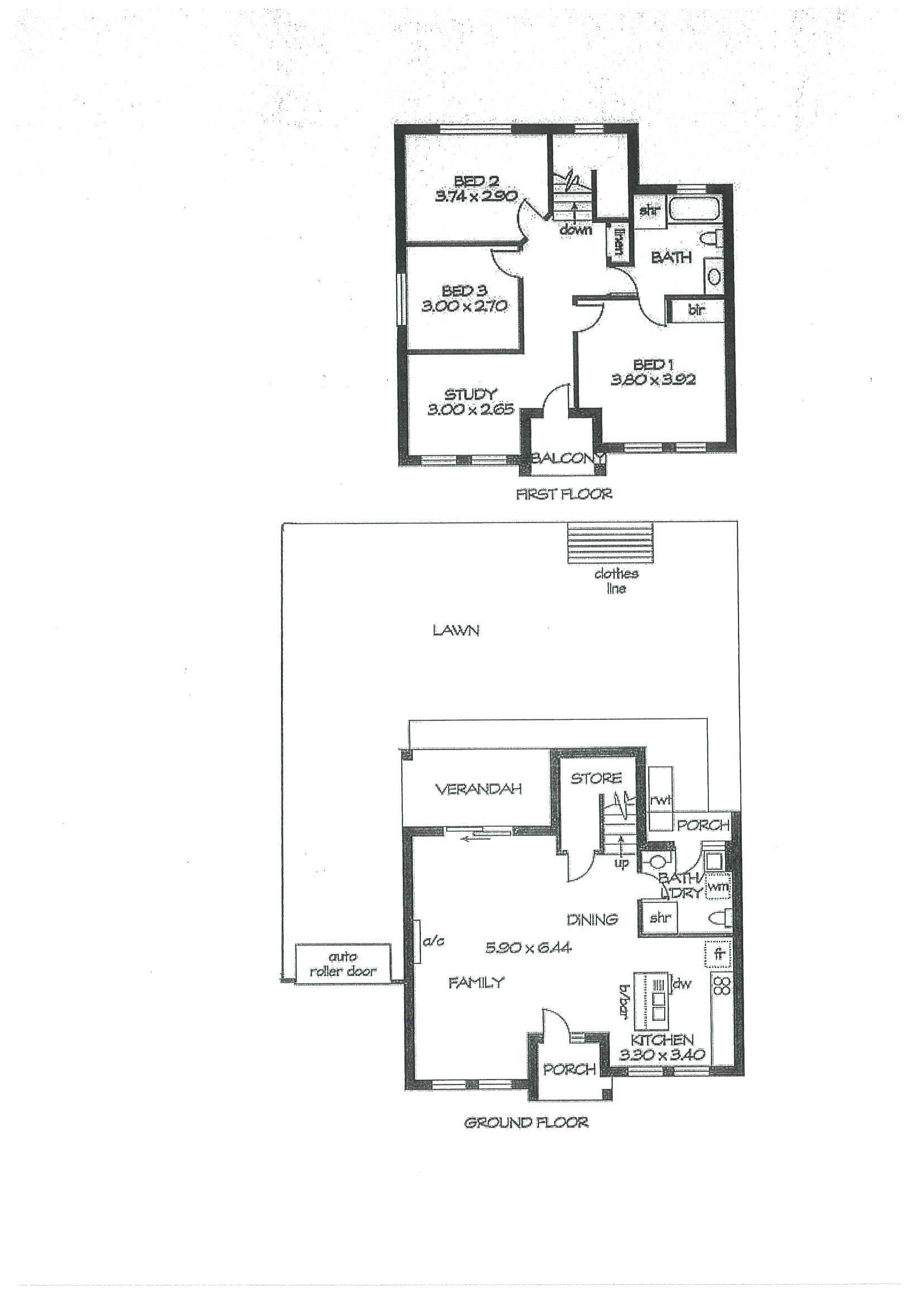
Let’s go upstairs and we have three generous sized bedrooms all with built in robes, 2 way bathroom and a relaxing family room,

The home is tastefully decorated with quality vertical blinds and carpet throughout.

Simply an ideal investment in an ideal location

 

Specifications

 

CT -5992/871

Council – City of Salisbury

Zoning – Residential

Built - 2009

Land – 204m2

Building - 147m2

Council Rate - $1077.40 pa

SA Water - $142.10 pq + $113.66 pq

ESL – $94.90 pa

Strata - $302.88 pq

Make an appointment to view today

For further enquiries call Romeo Riccio direct on 0412 846 021

LARCOR Real Estate, 42 Ann Street, Salisbury SA 5108

RLA154447

Disclaimer: All information provided (included but not limited to the properties land size, floor plan and floor size, building age and general property description) has obtained been obtained from sources deemed reliable, however, we cannot guarantee the information is accurate and we accept no liability for any errors or oversights. Interested parties should make their own inquiries and obtain their own legal advice.

3 1 1 204 m2
Suburb Salisbury
Price SOLD
Property Type Residential
Property ID 1398
Category House
Land Area 204 m2
Floor Area 147 m2

Agent Details

Romeo Riccio photo

Romeo Riccio

0412 846 021
View Profile