IMPRESSIVE PACKAGE

INVESTORS ONLY PLEASE

Currently Leased @295 per week til November 2021

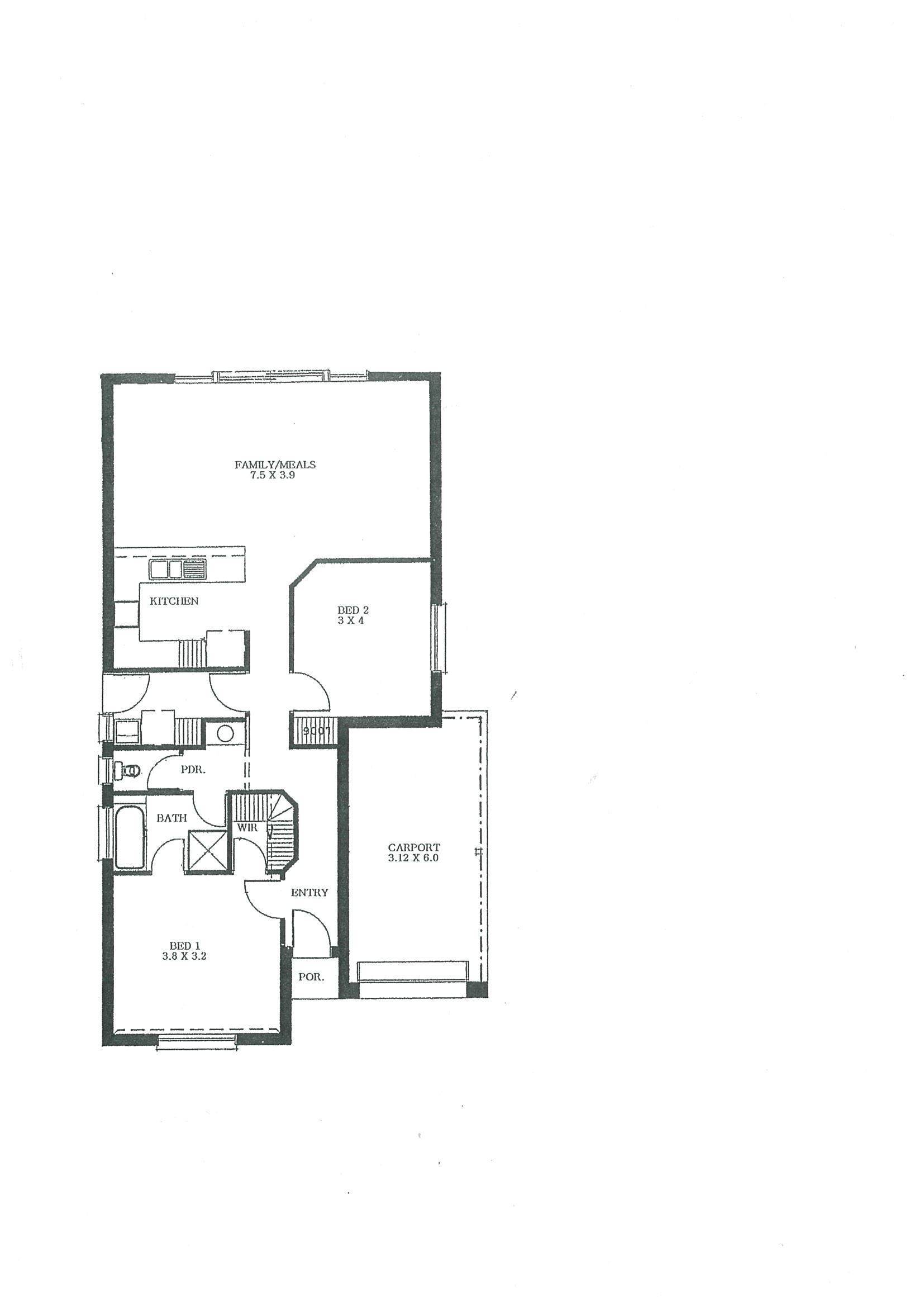
This Villa/Homette has quality, space, features and suits a low maintenance lifestyle.

An impressive street appeal with bluestone front and iron roof.

Features include tiled entry hall that leads to kitchen that boasts stainless electric oven, gas hotplate, rangehood, pantry, breakfast bar, dual sink with flickmixer

Only a step away is the large tiled meals/dine area.

The relaxing family room has reverse cycle split air conditioner and plenty of entertaining space.

Feel secure with front and back security screens and an alarm system.

Exterior benefits include paved verandah, carport under main roof- roller door (remote), easy care gardens, walking distance to schools, shops, transport.

View by appointment only

Specifications

CT -  5881/ 961

Council - City of Salisbury

Zoning - Residential

Built - 2003

Land - 233m2

Building Area – 112m2

Council Rate - TBA

SA Water - TBA

ESL - TBA

For further enquiries call Romeo Riccio direct on 0412 846 021

LARCOR Real Estate, 42 Ann Street, Salisbury SA 5108

RLA154447

Disclaimer: All information provided (included but not limited to the properties land size, floor plan and floor size, building age and general property description) has obtained been obtained from sources deemed reliable, however, we cannot guarantee the information is accurate and we accept no liability for any errors or oversights. Interested parties should make their own inquiries and obtain their own legal advice.

 

2 1 1
Suburb Salisbury
Price SOLD
Property Type Residential
Property ID 1315
Category House

Agent Details

Romeo Riccio photo

Romeo Riccio

0412 846 021
View Profile