VILLA WITH THE LOT!!!!

Situated amongst quality homes in a demand Montague Farm location is this delightful villa to suit the fussy buyer.

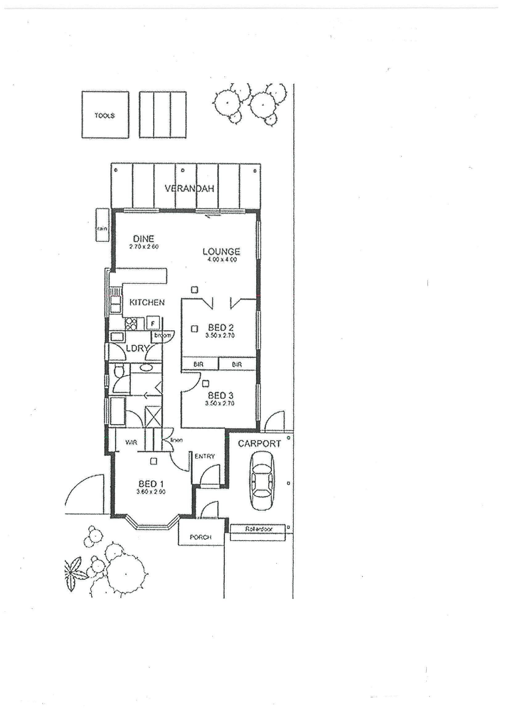
Invited in by the impressive street appeal is only the start, lets step inside, entry hall, quality laminate floors leading directly to living areas.

The sleeping quarters are well catered for with three good sized bedrooms main with bay window and all with built in robes

A convenient 2-way bathroom has the look of luxury.

The updated modern gourmet kitchen has it hall, offers electric oven, gas hotplates, range hood, abundance of workspace and cupboards overlooks a spacious dining area.

There is a relaxing family room that provides all the extra space you need for the family.

The long summer nights will not be a problem with ducted evaporative air conditioning.

External benefits include concrete driveway and path, carport under main roof with roller door, toolshed with a private and secure garden all on 299m2 allotment.

Simply a must to view!!!!

Specifications

Volume 5110 Folio 598

Council – Salisbury

Zoning – R1 Residential

Built – 1993

Land – 299m2

Building – 105m2

Council Rate - TBA

SA Water - TBA

ESL – TBA

Make an appointment today to view

For further enquiries call Romeo Riccio direct on 0412 846 021

LARCOR Real Estate, 42 Ann Street, Salisbury SA 5108

RLA154447

Disclaimer: All information provided (included but not limited to the properties land size, floor plan and floor size, building age and general property description) has obtained been obtained from sources deemed reliable, however, we cannot guarantee the information is accurate and we accept no liability for any errors or oversights. Interested parties should make their own inquiries and obtain their own legal advice.

3 1 1
Suburb Pooraka
Price SOLD
Property Type Residential
Property ID 1235
Category House

Agent Details

Romeo Riccio photo

Romeo Riccio

0412 846 021
View Profile