SENSATIONAL LOCATION

Sensational Location in this prime commercial precinct......

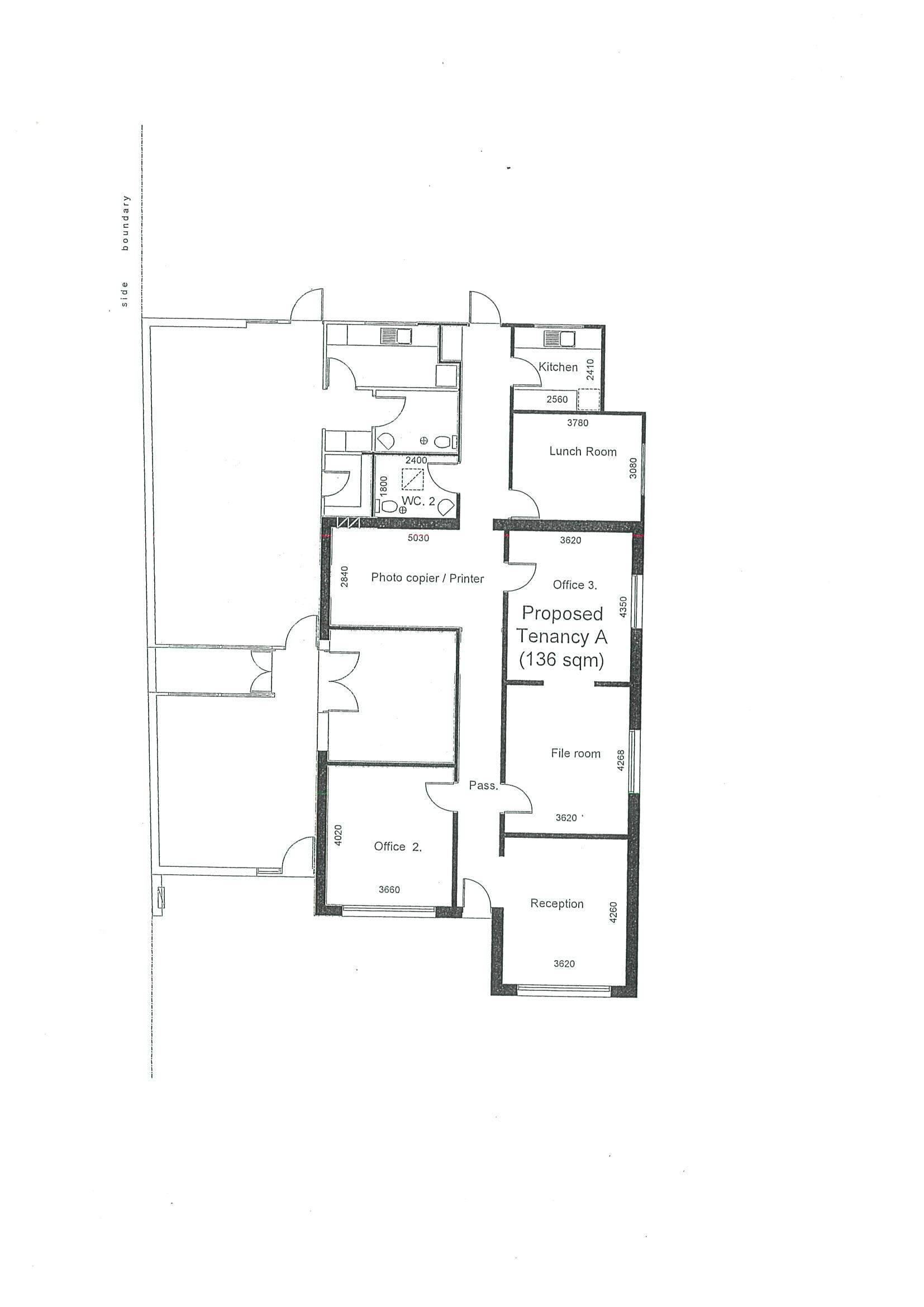
Ready to move in....

Painted and ready to go  ✔

Reception ✔

Entry hall✔

6 Offices ✔

Kitchen ✔

Reverse cycle ducted  air-conditioner throughout  ✔

Alarm system ✔

Secure rear off street parking ✔

Available now ✔

Flexible terms ✔

RLA154447

5
Address 33A Ann St, Salisbury
Price $28,000 p/a plus GST Plus Outgoings
Property Type Commercial
Property ID 1127
Category Offices
Office Area 136m2

Agent Details

Romeo Riccio photo

Romeo Riccio

0412 846 021
View Profile