SENSATIONAL LOCATION

Sensational Location in this prime commercial precinct......

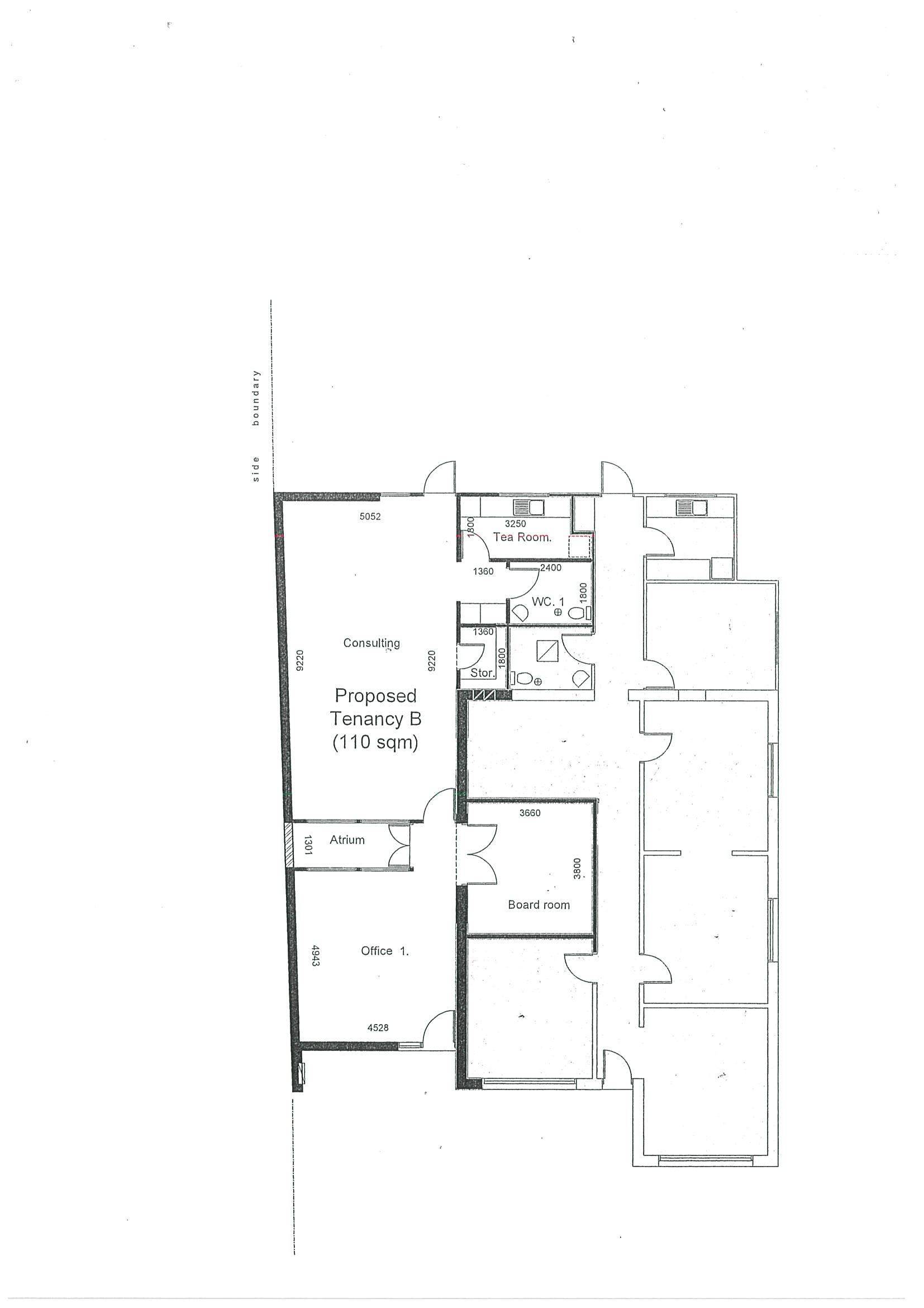
Ready to move in....

New paint througout ✔ 

Reception ✔

Atrium ✔

Open plan office 10 X 5m ✔

Kitchen ✔

Reverse cycle ducted  air-conditioner throughout  ✔

Alarm system ✔

Storeroom ✔ 

Secure rear off street parking ✔

Available now ✔

RLA154447

5
Address 33B Ann St, Salisbury
Price $22,000 p/a plus GST Plus Outgoings
Property Type Commercial
Property ID 1126
Category Offices
Office Area 110m2

Agent Details

Romeo Riccio photo

Romeo Riccio

0412 846 021
View Profile