INVESTORS WAKE UP

 

Investors only please

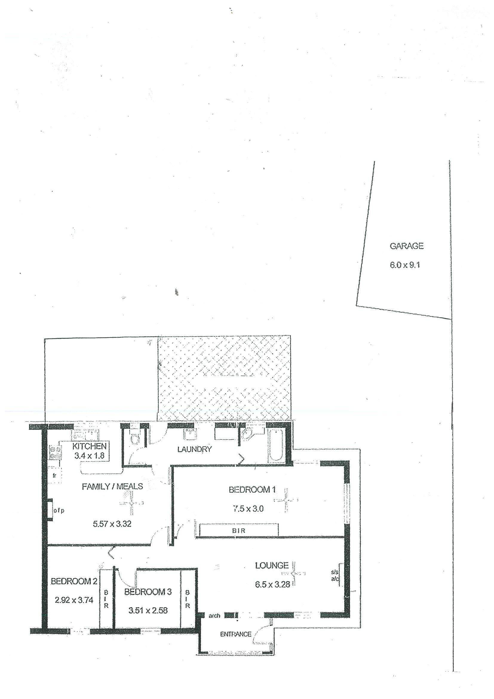
Situated amongst quality homes is this  brick super semi , iron roof  is the  ideal package to add to your investment portfolio.

Offer entry hall through to a large formal lounge with reverse split cycle air conditioner.

There are three generous size bedrooms built in robes to all.

The neat electric kitchen/dine offers plenty of room at meal time.

All the wet arrears bathroom/toilet/laundry have been tastefully updated with a look of luxury.

The home is tastefully decorated throughout with quality fixture and fittings.

Exterior benefits include veranda, 9m x 6m double garage with concrete and power all on a versatile 1021m2 allotment.

THE LAND THE LAND THE LAND

View by appointment only

Specifications
CT – Volume 5416 Folio 484   
Title - Torrens Title 
Council – City of Playford 
Zoning – General Neighbourhood (GN)
Built – 1960
Land - 1021m2
Frontage – 15.72m
Building – 125m2 (approx.)
Council Rates - $1835.50 pa
SA Water - $165.55 pq (excluding consumption) 
ESL – TBC pa
Current Rent - $410 per week
Estimated Rent - $500 - $510 per week
Easements – Party wall rights
Encumbrances – Nil
Construction – Brick
Gas – Not connected
Sewerage - Mains

Make an appointment to view today

For further enquiries call Romeo Riccio direct on 0412 846 021
LARCOR Real Estate, 42 Ann Street, Salisbury SA 5108

RLA154447
 
Disclaimer: All information provided (included but not limited to the properties land size, floor plan and floor size, building age and general property description) has obtained been obtained from sources deemed reliable, however, we cannot guarantee the information is accurate and we accept no liability for any errors or oversights. Interested parties should make their own inquiries and obtain their own legal advice.

 

 

3 1 4 1,021 m2
Suburb Elizabeth North
Price SOLD
Property Type Residential
Property ID 1774
Category House
Land Area 1,021 m2
Floor Area 125 m2

Agent Details

Romeo Riccio photo

Romeo Riccio

0412 846 021
View Profile